Plazatio

Vivienda en Orihuela

Orihuela . Alacant . España

Detalles del proyecto

Tipo: Edificación, reforma

Info

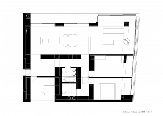
La vivienda reformada se encuentra en la última planta de un edificio de corte racionalista construido en la década de los 60 en la ciudad de Orihuela. Desde ella se disfrutan de unas vistas preciosas sobre las copas de los árboles de la Glorieta que tiene justo delante. A lo lejos se encuentran la sierra de Callosa y la de Orihuela. La vivienda cuenta con tres dormitorios y un gran salón comedor con cocina abierta. Los dormitorios recaen sobre las fachadas secundarias y la zona más pública de la vivienda ocupa toda la fachada recayente a la Glorieta. Este último espacio está caracterizado por tener una proporción muy alargada, reforzada más si cabe por la disposición en el eje longitudinal de un espectacular elemento que hace las veces de isla de cocina y mesa de comedor. El proceso de transformación de la vivienda ha contado con los dos ingredientes que consideramos fundamentales para hacer un buen diseño: tiempo y un gran equipo. Por un lado, hemos disfrutado de tiempo. El tiempo necesario para que las soluciones estén bien afinadas y tengan cierta profundidad. Tiempo para disfrutar del proceso y lograr una construcción precisa. Por otro lado somos conscientes de que hacer arquitectura es un hecho colectivo. Una gran cantidad de personas intervienen desde las fases iniciales de diseño hasta la entrega final. Desde los clientes que tienen la ilusión y necesidad que da origen al proyecto, hasta las personas que realizan la limpieza final de la obra para que todo quede impecable. Esta ha sido una de esas veces en las que el talento y buen hacer de cada una de las partes ha hecho que nuestro trabajo como arquitectos se haya limitado a hacer de hilo que une las perlas.

más info

publicado el 30/06/2020

Anteproyecto

Comentarios (0)

Proyecto promovido por:
CTAA . Colegio Territorial de Arquitectos de Alicante

 

Colegios asociados a Plazatio

Colegio Territorial de Arquitectos de Alicante Colegio Territorial de Arquitectos de Castellón Colegio Territorial de Arquitectos de Valencia Colegio Oficial de Arquitectos de la Comunidad Valenciana

Ver vídeo de Youtube
add
Top