Plazatio

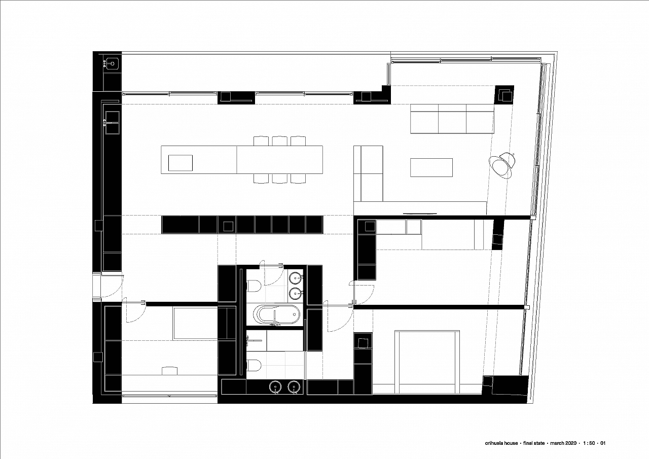
Vivienda en Orihuela

Orihuela . Alacant . España

Timeline
2026

publicado el 30/06/2020

2 ciudadano/s participan
2020
Julio

Me gusta · Comentar · Has compartido este contenido Compartir ·

A 0 persona le gusta esto.
Junio

Me gusta · Comentar · Has compartido este contenido Compartir ·

A 0 persona le gusta esto.

Proyecto promovido por:
CTAA . Colegio Territorial de Arquitectos de Alicante

 

Colegios asociados a Plazatio

Colegio Territorial de Arquitectos de Alicante Colegio Territorial de Arquitectos de Castellón Colegio Territorial de Arquitectos de Valencia Colegio Oficial de Arquitectos de la Comunidad Valenciana

Empresas colaboradoras de Plazatio

Dile Finstral Fiorentina Stone Gibeller Mapei Newker Niessen Porcelanosa Rainbird Sido Tecnolift Valero Xal IberoStone Hf Diseños ABC PCA SIMON PALPLASTIC LAESCANDELLA COSENTINO COVERTTO FreeDom ZAR

Ver vídeo de Youtube
add
Top