Plazatio

Vivienda Bonanova

Barcelona . Barcelona . España

Detalles del proyecto

Tipo: Edificación, reforma
Superficie construida (m2): 243

Info

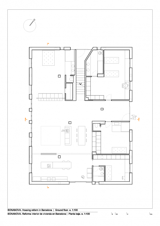
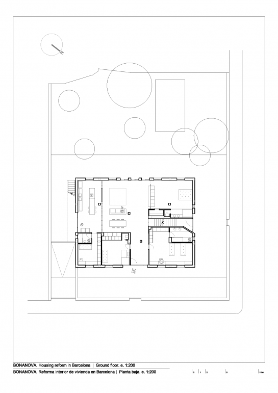
Fotografías estudi EPDSE. La intervención se emplaza en una trama urbana de baja densidad del Barrio de Bonanova de Barcelona. Se trata de una parcela de 933 m2. La misión consistía en reorganizar el programa funcional existente en la planta baja del inmueble para adaptarlo a las necesidades de una familia con cuatro hijos. El estado previo a la intervención presentaba una planta muy fragmentada, poco clara en la ordenación del programa y con espacios de relación poco favorecidos. La modificación de la distribución ha afectado a prácticamente el 100% de la superficie de la vivienda, pues las únicas estancias que se han conservado han sido 2 baños y el núcleo de comunicaciones verticales. Todo el resto se ha reordenado gracias a la libertad que permitía el sistema estructural: un forjado reticular sobre soportes verticales de 30x30cm en el que no había ningún cerramiento portante. En la planta resultante se manifiestan con claridad 2 franjas paralelas a la cale Marquesa de Villalonga. La más próxima a esta calle contiene el acceso principal con un amplio vestíbulo y los tres dormitorios de los hijos, cada uno de los cuales con un baño completo anexo. La segunda franja, de mayor superficie, contiene el núcleo de comunicaciones verticales, el dormitorio principal, y la zona interior de relación de la vivienda, constituido por la cocina-estar-comedor. Todas estas piezas disponen de contacto directo con el jardín, orientado al suroeste. La cocina está planteada para permanecer abierta y comunicada con el volumen principal, pero puede segregarse del mismo mediante un conjunto de puertas correderas. Con el objetivo de lograr una mayor armonía y homogeneizar el sustrato original con la obra nuevas, se ha utilizado una reducida paleta de materiales que, fundamentalmente, son un pavimento preexistente de madera maciza de pino debidamente restaurado. Revestimiento de yeso en tabiquería, techos y resto de cerramiento verticales. Tablero de DM hidrófugo lacado en blanco para el mobiliario encastado. Placas sintéticas de cuarzo en color blanco y vidrio laminado transparente en los baños y hormigón visto en los pilares de la estructura vertical preexistente.

1 arquitectos seguidores

publicado el 09/12/2014

Comentarios (0)

Proyecto promovido por:
CTAA . Colegio Territorial de Arquitectos de Alicante

 

Colegios asociados a Plazatio

Colegio Territorial de Arquitectos de Alicante Colegio Territorial de Arquitectos de Castellón Colegio Territorial de Arquitectos de Valencia Colegio Oficial de Arquitectos de la Comunidad Valenciana

Empresas colaboradoras de Plazatio

Dile Finstral Fiorentina Stone Gibeller Mapei Newker Niessen Porcelanosa Rainbird Sido Tecnolift Valero Xal IberoStone Hf Diseños ABC PCA SIMON PALPLASTIC LAESCANDELLA COSENTINO COVERTTO FreeDom ZAR

Ver vídeo de Youtube
add
Top