Plazatio

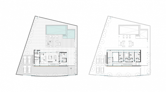
VILLA GAWY

Cartagena . Murcia . España . 2013

Detalles del proyecto

Año: 2013
Tipo: Edificación, obra nueva
Superficie de parcela (m2): 844
Superficie construida (m2): 272
Altura maxima: 6.45
Colegio: COAMU
B

Info

Vivienda Unifamiliar Aislada en La Manga del Mar Menor

más info

publicado el 29/10/2018

Proyecto de ejecución

Comentarios (0)

Proyecto promovido por:
CTAA . Colegio Territorial de Arquitectos de Alicante

 

Colegios asociados a Plazatio

Colegio Territorial de Arquitectos de Alicante Colegio Territorial de Arquitectos de Castellón Colegio Territorial de Arquitectos de Valencia Colegio Oficial de Arquitectos de la Comunidad Valenciana

Empresas colaboradoras de Plazatio

Dile Finstral Fiorentina Stone Gibeller Mapei Newker Niessen Porcelanosa Rainbird Sido Tecnolift Valero Xal IberoStone Hf Diseños ABC PCA SIMON PALPLASTIC LAESCANDELLA COSENTINO COVERTTO FreeDom ZAR

Ver vídeo de Youtube
add
Top