Plazatio

Una casa de libro

Madrid . Madrid . España

Detalles del proyecto

Tipo: Edificación, rehabilitación
Superficie construida (m2): 170

Info

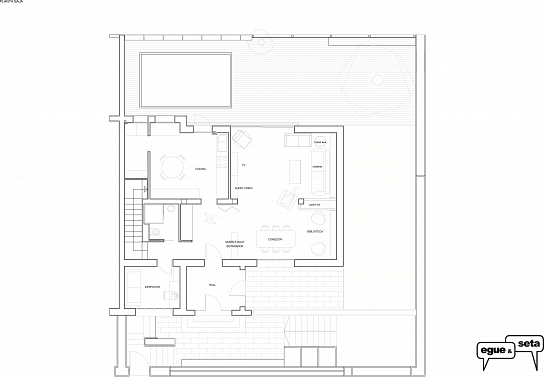
Imágenes realizadas por Vicugo Foto. Abrimos el recetario por la sección de “casas chulas” para intentar transformar una vieja casa de los años 50 del centro de Madrid en el nuevo hogar de una familia con hijos. Ingredientes: techos altos, mucha luz confort Aderezo: Autenticidad Creatividad Pasión por los libros, las historias y el cine Preparación: Mezcle bien y deje reposar. Sirva con generosidad y elegancia para compartir con la familia y los amigos una casa sabrosa y con final feliz que refleja la personalidad y la forma de ser de dos jóvenes padres muy leídos con dos niños de cuento. Ni castillo, ni cabaña del bosque: La casita de esta historia, aunque particular no puede llamarse “única” ya que tiene una “gemela” a la que se encuentra adosada formando un conjunto arquitectónico singular. Y aunque no acabe en torre, ni en campanario, si que se organiza en tres plantas rectangulares que se van escalonando y reduciendo en superficie en cada nivel, para verse rematadas por una cubierta a dos aguas bajo la cual se instala una biblioteca a doble altura repleta de libros e historias. Pero no “comencemos“ la casa por el tejado, pongamos de nuevo los pies en la tierra y volvamos a la entrada a nivel de calle: Érase una vez una casa a la que accedíamos subiendo unos pocos escalones que nos dan paso a un zaguán y a un patio delantero donde la jardinera de lavanda nos despierta los sentidos: Un pequeño jardín que desde ahí rodea la casa lateralmente hasta la parte norte donde se sitúa la terraza con piscina, ya que hoy en día los pozos encantados tienen más bien poca utilidad. Tras dos generosas puertas correderas de cristal, en el corazón de la planta baja, encontramos un gran salón constantemente poblado de autores y sus personajes que nos miran de reojo desde algún rincón de los 30m2 verticales de biblioteca en madera maciza. Sobre todos ellos podemos leer recostados en alguna de las butacas originales de los años 50 que flanquean un importante sofá o sentados alrededor de una formidable mesa de granja francesa del siglo XIX. Si algún pasaje le abre el apetito, no tiene más que dar un par de pasos hasta la cocina abierta pero independiente, que se ofrece como espacio práctico y confortable, en donde el blanco de los muebles de cocina, se combina con la mesa de madera y el hormigón del suelo. Completan esta planta un pequeño despacho, por si lo que preferimos es ponernos a escribir, y un aseo con su ducha, porque no solo de pan vive el hombre. Aquí, en un ejercicio retórico de economía estilística, se optó por el uso de sólo dos materiales, microcemento y madera, creando un espacio rotundo, de líneas prácticas y pureza formal. Dicen que la lectura tiene el poder de elevar e iluminarnos, así que es momento de subir a la primera planta en cuyo hall nos recibe una gran lámpara que enfatiza un espacio a doble altura y el carácter vertical de la casa. Desde aquí nos dirigimos a las habitaciones: En la primera leeremos una historia con moraleja antes de dormir, un dormitorio infantil donde soñar y jugar bajo una la litera con forma de casita del árbol para los niños. En su cuarto de baño, los “peques” compartirán un lavabo doble metálico de Koholer de estilo retro, rodeados de paredes de azulejo hexagonal de Hisbalit y el suelo de microcemento gris, sobre los cuales apetece mojarse. En el dormitorio principal la indiscutible protagonista es la luz: las diferentes ventanas en paredes y techo dejan que el sol se meta en la cama cada mañana mientras nos invita a levantarnos para vivir un nuevo episodio. En el baño principal los lavabos tipo bol se disponen frente a la ventana colocados sobre una encimera de microcemento blanco que se prolonga hasta la ducha para convertirse en una estantería en donde dejar apoyado quizás otro tomo mientras, si disponemos de suficiente tiempo, nos relajamos tomando un baño tibio de fábula en una bañera exenta de antología. El último capítulo de esta casa nos pilla en la planta superior que transcurre entre reuniones, juegos e invitados. Aquí al pie de la biblioteca que nos recibía bajo el tejado del tercer párrafo, encontramos un salón de juegos preparado para vestirse, cuando toque, de habitación doble de invitados, y con capacidad para resguardar el auténtico tesoro literario y videográfico que esconde esta familia, mientras una cama de red suspendida convierte la estancia en el sitio ideal para quedarse “literalmente” colgado. Y aquí nos quedamos aunque tengamos aun mucha tinta y papel: Es hora de callar y dejaros ver imágenes que valen lo que mil palabras. Pero antes y aunque los libros de recetas no suelan acabar con la frase, en este caso no hemos podido resistirnos: Colorín colorado, este cuento se ha acabado.

más info

publicado el 31/05/2016

Comentarios (0)

Proyecto promovido por:
CTAA . Colegio Territorial de Arquitectos de Alicante

 

Colegios asociados a Plazatio

Colegio Territorial de Arquitectos de Alicante Colegio Territorial de Arquitectos de Castellón Colegio Territorial de Arquitectos de Valencia Colegio Oficial de Arquitectos de la Comunidad Valenciana

Empresas colaboradoras de Plazatio

Dile Finstral Fiorentina Stone Gibeller Mapei Newker Niessen Porcelanosa Rainbird Sido Tecnolift Valero Xal IberoStone Hf Diseños ABC PCA SIMON PALPLASTIC LAESCANDELLA COSENTINO COVERTTO FreeDom ZAR

Ver vídeo de Youtube
add
Top