Plazatio

TXOKO

Getxo . Vizcaya . España

Detalles del proyecto

Tipo: Edificación, rehabilitación
Superficie construida (m2): 60

Info

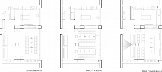
El objeto de proyecto fue la rehabilitación de un txoko (sociedad gastronómica en el país vasco) El condicionante principal fue el aforo, el txoko consta de 32 socios, pero habitualmente se reúnen a comer no más de 12/15 socios, por lo tanto había que pensar en una manera de guardar sillas y mesas que habitualmente no fueran utilizadas. Se diseñaron un par de sillas “complementarias” y a partir de ellas un mueble de guardado que oficia de exposición y almacenaje. La distribución es sencilla, una cocina industrial y un baño en la misma zona húmeda y un espacio de uso, distribuido de manera que puedan darse tres escenarios, reunión de 12 personas, lo habitual, reunión de 32 personas, lo extraordinario y reunión de un grupo a ver cine. Los materiales empleados en la intervención son seleccionados para resaltar la madera del mobiliario, negro y blanco de fondo para dar protagonismo mediante contraste del roble. Todo está diseñado, las sillas, las mesas, la iluminación y el mobiliario en general. En nuestra doble labor de arquitectos y constructores cuidamos con excesivo mimo el acabado y los detalles.

más info

publicado el 18/07/2017

Proyecto básico

Comentarios (0)

Proyecto promovido por:
CTAA . Colegio Territorial de Arquitectos de Alicante

 

Colegios asociados a Plazatio

Colegio Territorial de Arquitectos de Alicante Colegio Territorial de Arquitectos de Castellón Colegio Territorial de Arquitectos de Valencia Colegio Oficial de Arquitectos de la Comunidad Valenciana

Empresas colaboradoras de Plazatio

Dile Finstral Fiorentina Stone Gibeller Mapei Newker Niessen Porcelanosa Rainbird Sido Tecnolift Valero Xal IberoStone Hf Diseños ABC PCA SIMON PALPLASTIC LAESCANDELLA COSENTINO COVERTTO FreeDom ZAR

Ver vídeo de Youtube
add
Top