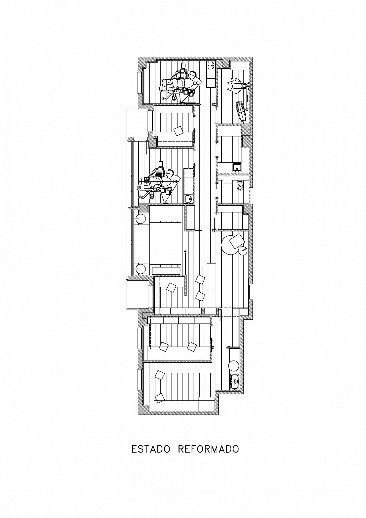
Plazatio

Reforma local para médico analista y dentista

Castellón de la Plana . Castellón . España . 2006

Timeline
2026
2 arquitectos seguidores

publicado el 04/05/2013

1 ciudadano/s participan
2013
Mayo

Me gusta · Comentar · Has compartido este contenido Compartir ·

A 0 persona le gusta esto.
Se inició el proyecto · 13 de enero del 2006

Aporta vida al lugar

Le gusta vivir aqui a 1

Proyecto promovido por:
CTAA . Colegio Territorial de Arquitectos de Alicante

 

Colegios asociados a Plazatio

Colegio Territorial de Arquitectos de Alicante Colegio Territorial de Arquitectos de Castellón Colegio Territorial de Arquitectos de Valencia Colegio Oficial de Arquitectos de la Comunidad Valenciana

Empresas colaboradoras de Plazatio

Dile Finstral Fiorentina Stone Gibeller Mapei Newker Niessen Porcelanosa Rainbird Sido Tecnolift Valero Xal IberoStone Hf Diseños ABC PCA SIMON PALPLASTIC LAESCANDELLA COSENTINO COVERTTO FreeDom ZAR

Ver vídeo de Youtube
add
Top