Plazatio

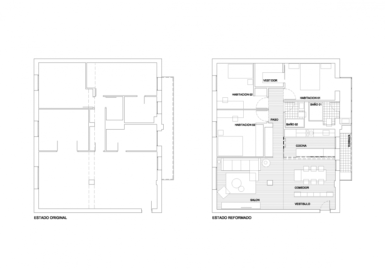
Reforma integral apartamento Pamplona

Pamplona/Iruña . Navarra . España . 2013

Timeline
2026

publicado el 29/02/2016

1 ciudadano/s participan
2016
Febrero

Me gusta · Comentar · Has compartido este contenido Compartir ·

A 0 persona le gusta esto.
Se inició el proyecto · 01 de abril del 2013

Proyecto promovido por:
CTAA . Colegio Territorial de Arquitectos de Alicante

 

Colegios asociados a Plazatio

Colegio Territorial de Arquitectos de Alicante Colegio Territorial de Arquitectos de Castellón Colegio Territorial de Arquitectos de Valencia Colegio Oficial de Arquitectos de la Comunidad Valenciana

Empresas colaboradoras de Plazatio

Dile Finstral Fiorentina Stone Gibeller Mapei Newker Niessen Porcelanosa Rainbird Sido Tecnolift Valero Xal IberoStone Hf Diseños ABC PCA SIMON PALPLASTIC LAESCANDELLA COSENTINO COVERTTO FreeDom ZAR

Ver vídeo de Youtube
add
Top