Plazatio

Oficinas de Cointec

Orihuela . Alacant . España

Detalles del proyecto

Tipo: Edificación
Superficie construida (m2): 260

Info

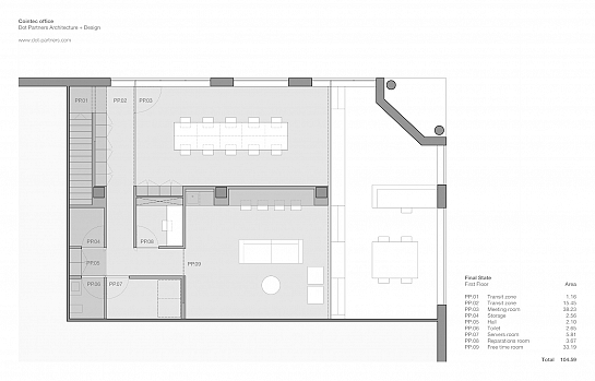
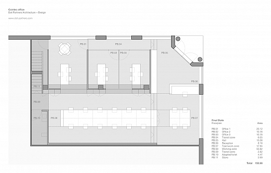
El proyecto para las nuevas oficinas de Cointec trata de acondicionar un local comercial frente al Parque Severo Ochoa, en la ciudad de Orihuela. El espacio se presentaba en bruto, únicamente con una estructura metálica construida para albergar una entreplanta. La posición deprimida del local con respecto a los viales y el hecho de encontrarse en una zona inundable fueron determinantes para la creación de un nivel elevado en la zona de acceso, que sirviese de protección frente al agua de escorrentía. El proyecto dibuja una distribución en la que se pretende favorecer la sensación de amplitud creando un espacio continuo compartimentado únicamente a través de la posición precisa de piezas de mobiliario y mamparas de vidrio que conectan visualmente las distintas estancias. La escalera y los aseos están situados en el fondo del local permitiendo disponer una mayor superficie de espacio libre en la zona delantera. Una banda central resuelve el espacio de almacenamiento necesario para los espacios de trabajo y el paso de las instalaciones de climatización y renovación de aire. La materialidad del proyecto se caracteriza por el empleo de un pavimento continuo de hormigón, que resuelve todas las estancias de la oficina y armoniza con la perfilería de acero inoxidable satinado de las mamparas. La piedra empleada para la construcción del banco situado en el hall genera el contraste pretendido con el pavimento y acentúa su carácter singular. Txema García Ballester, arquitecto en Dot Partners: “Cuando iniciamos nuestra actividad profesional, el mundo vivía sumido en una de las mayores crisis económicas de la historia moderna. Entendimos que la sociedad demandaba de los arquitectos una arquitectura capaz de enfrentarse a los periodos de crisis y de optimizar los recursos para lograr más calidad con menos coste. Nuestra propuesta trata de ofrecer obras de arquitectura honestas tomando como principales valores la austeridad y la sencillez. Las oficinas para Cointec han sido creadas desde esa perspectiva, consiguiendo que la expresividad del espacio venga dada por las proporciones, la materia y la luz.

más info

publicado el 30/09/2016

Proyecto básico

Comentarios (0)

Proyecto promovido por:
CTAA . Colegio Territorial de Arquitectos de Alicante

 

Colegios asociados a Plazatio

Colegio Territorial de Arquitectos de Alicante Colegio Territorial de Arquitectos de Castellón Colegio Territorial de Arquitectos de Valencia Colegio Oficial de Arquitectos de la Comunidad Valenciana

Empresas colaboradoras de Plazatio

Dile Finstral Fiorentina Stone Gibeller Mapei Newker Niessen Porcelanosa Rainbird Sido Tecnolift Valero Xal IberoStone Hf Diseños ABC PCA SIMON PALPLASTIC LAESCANDELLA COSENTINO COVERTTO FreeDom ZAR

Ver vídeo de Youtube
add
Top