Nuevo Edificio de Juzgados de Plasencia
Plasencia . Cáceres . España
Detalles del proyecto
Tipo: Edificación, obra nueva
Superficie construida (m2): 10.994
Info
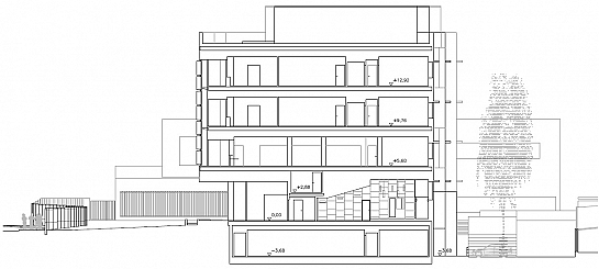
Se buscó el carácter institucional mediante una arquitectura de volúmenes rotundos y materiales duraderos, al tiempo que se pretende amabilidad y confort para el usuario (tanto trabajadores como visitantes). El mayor valor desde el punto de vista funcional es su versatilidad, dentro de una organización estructural y de circulaciones compleja, propia del uso judicial. El secreto: luz natural en todas las estancias. En plantas baja y primera se concentran los usos de atención al público. En el resto se encuentran los 11 juzgados, de acceso controlado. La organización se basa en la repetición de un módulo con 2 salas de vistas y 4 juzgados. Se perfecciona una estrategia de sostenibilidad, que incluye desde aspectos económicos y sociales (versatilidad del edificio, estética “atemporal”, flexibilidad espacial, materiales duraderos, abundante iluminación y ventilación natural en todas las estancias...) hasta un eficiente sistema de gestión de recursos naturales (reciclaje de aguas, materiales naturales, reciclables y propios del lugar, vegetación autóctona...). También se implementan prácticas de ahorro de energía como refrescamiento por evaporación, sistemas pasivos de control y aprovechamiento solar, equipos de alto rendimiento, técnicas de control para la eficiencia de instalaciones térmicas y de iluminación, etc. Versatilidad en la organización funcional Una correcta organización con circulaciones segregadas (púbico, funcionarios y detenidos) ha de permitir cualquier ordenación funcional futura. El edificio se diseñó con la nueva organización de la justicia, la Oficina Judicial, que reúne servicios comunes que antes eran parte del trabajo de los juzgados. Finalmente no se ha implantado este sistema. Y sin embargo el edificio ha permitido con facilidad una nueva distribución de servicios. Esto fue posible gracias a los patios situados entre módulos de juzgados, que también permitirán posibles reorganizaciones futuras. La implantación había de prever un futuro crecimiento; así, el edificio permite añadir otros dos módulos más creciendo hacia el suroeste.
publicado el 20/12/2016