Plazatio

M24 House

Alcúdia . Illes Balears . España

Detalles del proyecto

Tipo: Edificación, obra nueva
Superficie construida (m2): 450

Info

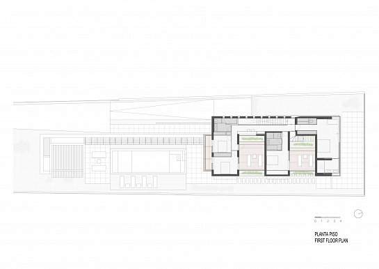
Given the narrowness of the site and marked by the northern views, a 47-metre-long stone wall becomes the backbone of the project. This axis remarks visual continuity and connection between the swimming pool courtyard and the sea. A sequence of voids organises the first floor level and defines the house’s geometry. In this way bedrooms have good views, sunlight and privacy.

más info

publicado el 26/03/2018

Comentarios (0)

Proyecto promovido por:
CTAA . Colegio Territorial de Arquitectos de Alicante

 

Colegios asociados a Plazatio

Colegio Territorial de Arquitectos de Alicante Colegio Territorial de Arquitectos de Castellón Colegio Territorial de Arquitectos de Valencia Colegio Oficial de Arquitectos de la Comunidad Valenciana

Empresas colaboradoras de Plazatio

Dile Finstral Fiorentina Stone Gibeller Mapei Newker Niessen Porcelanosa Rainbird Sido Tecnolift Valero Xal IberoStone Hf Diseños ABC PCA SIMON PALPLASTIC LAESCANDELLA COSENTINO COVERTTO FreeDom ZAR

Ver vídeo de Youtube
add
Top