Plazatio

Loft MDP

Barcelona . Barcelona . España

Detalles del proyecto

Tipo: Edificación, obra nueva

Info

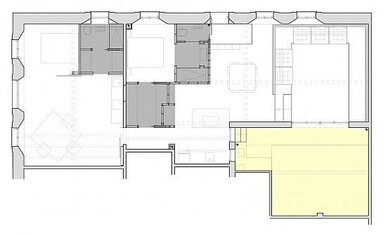
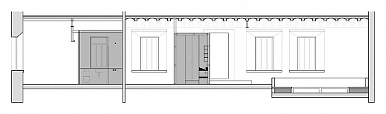
Al afrontar la reforma de este antiguo taller en el Poble Sec de Barcelona, el principal reto era conseguir habilitar el espacio para su nuevo uso como vivienda preservando todos los elementos constructivos que le confieran carácter y singularidad al local. El estado de estos elementos era precario. Las paredes de piedra y ladrillo, así como las bovedillas cerámicas del techo, estaban ocultas tras gruesos revestimientos de yeso y mortero. En el forjado, las vigas de madera tenían un grave problema de termitas que afectaba a la seguridad de todo el edificio. Por otro lado, el local tenía múltiples entradas de luz. Su configuración nos permitía trabajar las aberturas a calle con vidrio translucido para preservar la privacidad del interior, ya que dispondríamos de un patio interior sobre el que orientar las vistas de los espacios principales de la vivienda. Los elementos existentes que queríamos preservar, restaurar, y poner en valor configuran la carcasa superior del proyecto: paredes y techo. Por tanto, será el pavimento quien asuma la responsabilidad de ser el elemento de nueva ejecución que articule los espacios del proyecto. Éste se convierte en un magma continuo que coloniza la base del local proporcionándonos un espacio fluido y a la vez jerarquizado por los diferentes niveles y volúmenes resultantes. En primer lugar soluciona el conflicto de niveles que se nos presenta al tener dos accesos des de calle a diferente cota. A su vez resuelve con fluidez la transición des de la cota principal hasta el nivel del patio que se sitúa unos 45 cm por debajo. En segundo lugar, el mobiliario fijo de la vivienda nace del pavimento, generando un sofá de obra, bancadas de cocina y otros elementos de mobiliario del baño. Dentro de los ámbitos generados a partir de la nueva base, unas cajas cerradas contendrán los espacios de uso más privativo, como los cuartos de baño y los vestidores. Con su posición en el espacio se articula también la generación de las zonas de dormitorio, separadas de las zonas públicas de la vivienda. El singular programa funcional de la vivienda surge de los requerimientos planteados por el propietario. Necesitaba un pequeño apartamento segregable para las frecuentes visitas que recibe a lo largo del año. A la vez, este espacio accesorio será usado como estudio y oficina durante el tiempo en que no haya huéspedes en la casa. Es por este motivo que la vivienda se configura en dos ámbitos diferenciados que pueden arribar a funcionar de forma totalmente independiente.

más info

publicado el 16/02/2017

Proyecto básico

Comentarios (0)

Proyecto promovido por:
CTAA . Colegio Territorial de Arquitectos de Alicante

 

Colegios asociados a Plazatio

Colegio Territorial de Arquitectos de Alicante Colegio Territorial de Arquitectos de Castellón Colegio Territorial de Arquitectos de Valencia Colegio Oficial de Arquitectos de la Comunidad Valenciana

Empresas colaboradoras de Plazatio

Dile Finstral Fiorentina Stone Gibeller Mapei Newker Niessen Porcelanosa Rainbird Sido Tecnolift Valero Xal IberoStone Hf Diseños ABC PCA SIMON PALPLASTIC LAESCANDELLA COSENTINO COVERTTO FreeDom ZAR

Ver vídeo de Youtube
add
Top