Plazatio

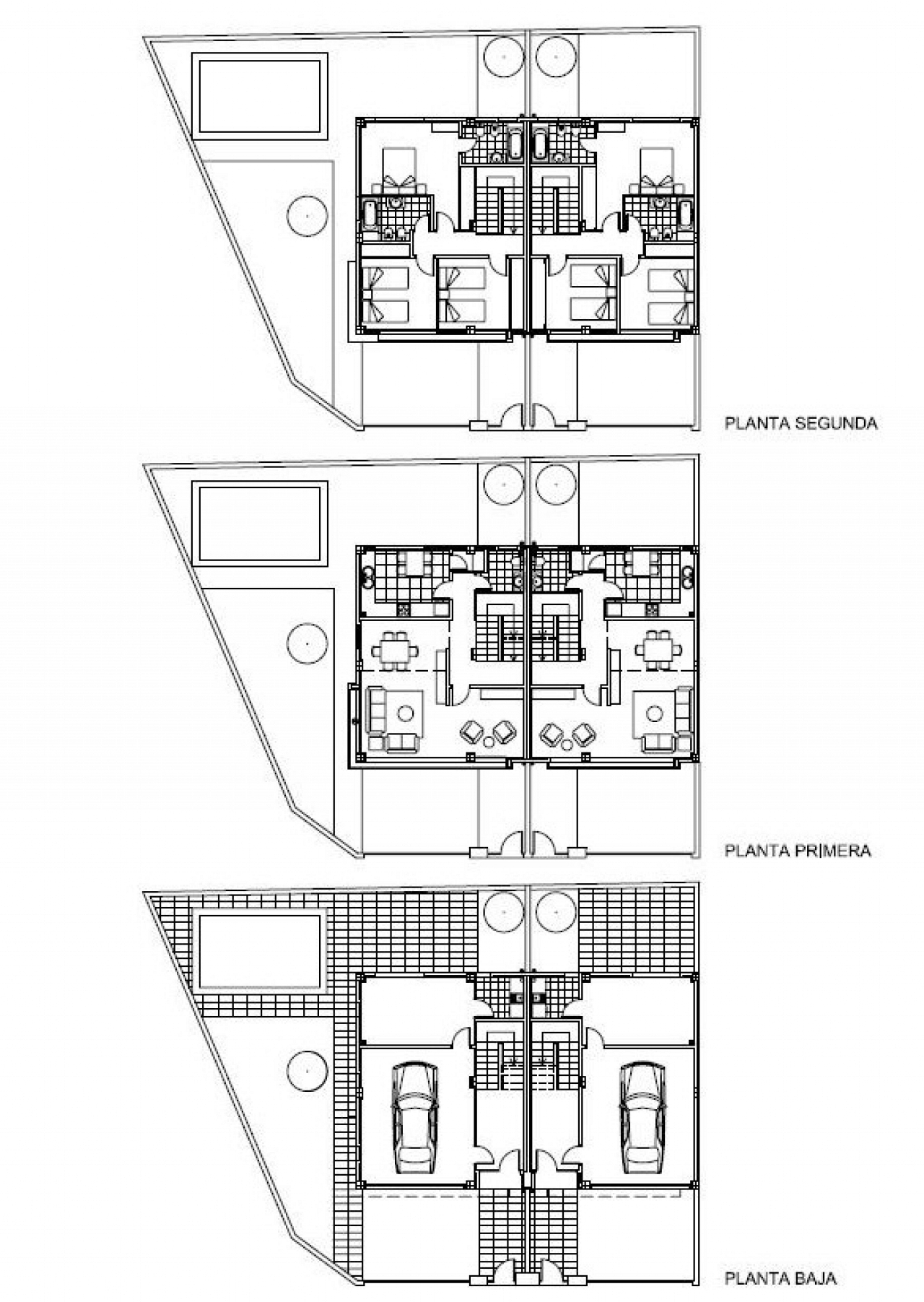
DOS VIVIENDAS ADOSADAS EN ALQUERIAS

Alquerías del Niño Perdido . Castellón . España

Timeline

publicado el 22/07/2013

1 ciudadano/s participan
2013
Julio

Me gusta · Comentar · Has compartido este contenido Compartir ·

A 0 persona le gusta esto.

Me gusta · Comentar · Has compartido este contenido Compartir ·

A 0 persona le gusta esto.

Proyecto promovido por:
CTAA . Colegio Territorial de Arquitectos de Alicante

 

Colegios asociados a Plazatio

Colegio Territorial de Arquitectos de Alicante Colegio Territorial de Arquitectos de Castellón Colegio Territorial de Arquitectos de Valencia Colegio Oficial de Arquitectos de la Comunidad Valenciana

Empresas colaboradoras de Plazatio

Dile Finstral Fiorentina Stone Gibeller Mapei Newker Niessen Porcelanosa Rainbird Sido Tecnolift Valero Xal IberoStone Hf Diseños ABC PCA SIMON PALPLASTIC LAESCANDELLA COSENTINO COVERTTO FreeDom ZAR

Ver vídeo de Youtube
add
Top