Plazatio

Corporativo GM

Zapopan . Jalisco . México

Detalles del proyecto

Tipo: Edificación
Superficie construida (m2): 510

Info

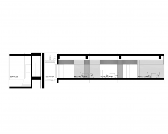
Corporativo GM. Imágenes realizadas por César Béjar. El corporativo se encuentra en un piso de 510 m2 al interior de un edicio en la nueva zona corporativa al poniente de la ciudad. La propuesta de el espacio se pensó como una alianza entre la fachada, la distribución y las columnas. Los distintos planos se utilizaron para hacer uir los distintos espacios, teniendo también como objetivo guiar a las personas. El mobiliario principal fue especícamente diseñado para la propuesta y en conjunto con las columnas proveen de carácter a las distintas áreas de trabajo. Al abrirse las puertas de los elevadores nos recibe la transparencia de la sala de juntas como sinónimo de dialogo, este espacio nos recibe sin hablar ni sentirnos observados, es el vestíbulo principal el que nos guía naturalmente hacia el área de recepción en donde el mueble principal con su presencia lítica nos permite intuir la secuencia natural de los espacios. Los cristales divisorios parecen intersectarse entre si dejando un espacio libre para la circulación que permite ingresar hacia el área general de trabajo. En el caso de las ocinas, la privacidad se encuentra resuelta al limite de su fragilidad ya que esta se logra gracias a las persianas que a su vez permiten que la luz natural sea protagonista ltrandose hacia las áreas centrales de trabajo. La planta circular del edicio y las columnas de la estructura fueron puntos esenciales dentro de la propuesta ya que la distribución del corporativo se planeo para que estas columnas funcionaran para jerarquizar y vestibular los diversos espacios. Estas columnas se presentan en distintas condiciones siempre manteniendo su caracter libre, en donde el resultado es completamente distinto en cada situación. Las 2 ocinas principales se mantuvieron las mas distantes del área de recepción con la intención de brindarles mayor privacidad, una de ellas se mantiene vinculada permanentemente a la sala de juntas. La distribución se proyecto dando continuidad a la forma redonda del edificio logrando ecientar al máximo los espacios al interior y permitiendo proveer de luz natural a las áreas centrales de trabajo. La materialidad en todas las ocinas se mantuvo en una paleta simple y natural con aplicaciones bien denidas en donde se provoco que los materiales resaltaran sus cualidades naturales. Es gracias a estas cualidades que los materiales nos transmiten un mensaje formal y relajado a la vez.

más info

publicado el 17/10/2016

Proyecto básico

Comentarios (0)

Proyecto promovido por:
CTAA . Colegio Territorial de Arquitectos de Alicante

 

Colegios asociados a Plazatio

Colegio Territorial de Arquitectos de Alicante Colegio Territorial de Arquitectos de Castellón Colegio Territorial de Arquitectos de Valencia Colegio Oficial de Arquitectos de la Comunidad Valenciana

Empresas colaboradoras de Plazatio

Dile Finstral Fiorentina Stone Gibeller Mapei Newker Niessen Porcelanosa Rainbird Sido Tecnolift Valero Xal IberoStone Hf Diseños ABC PCA SIMON PALPLASTIC LAESCANDELLA COSENTINO COVERTTO FreeDom ZAR

Ver vídeo de Youtube
add
Top