Plazatio

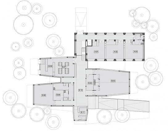
Centro de Día para enfermos de Alzheimer

Novelda . Alacant . España

Detalles del proyecto

Tipo: Edificación, reforma, ampliación
Superficie de parcela (m2): 2.332
Superficie construida (m2): 742

Info

www.erreria.com

publicado el 16/01/2013

Proyecto de ejecución

Proyecto promovido por:
CTAA . Colegio Territorial de Arquitectos de Alicante

 

Colegios asociados a Plazatio

Colegio Territorial de Arquitectos de Alicante Colegio Territorial de Arquitectos de Castellón Colegio Territorial de Arquitectos de Valencia Colegio Oficial de Arquitectos de la Comunidad Valenciana

Empresas colaboradoras de Plazatio

Dile Finstral Fiorentina Stone Gibeller Mapei Newker Niessen Porcelanosa Rainbird Sido Tecnolift Valero Xal IberoStone Hf Diseños ABC PCA SIMON PALPLASTIC LAESCANDELLA COSENTINO COVERTTO FreeDom ZAR

Ver vídeo de Youtube
add
Top