Plazatio

Casa T02

Aguascalientes . Aguascalientes . México

Detalles del proyecto

Tipo: Edificación, obra nueva
Superficie construida (m2): 235

Info

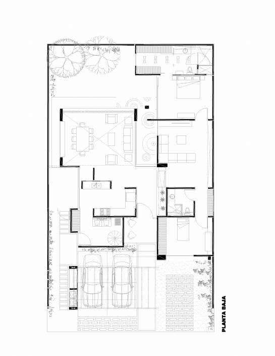
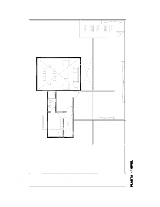
Imágenes realizadas por Oscar Hernández. El proyecto se resuelve en un solo nivel, ya que está diseñada para parejas discapacitadas, personas solas, jóvenes o maduras. Las circulaciones se optimizaron para beneficiar los espacios vivenciales. Es un concepto de “espacio abierto” donde el espejo de agua y el jardín son el punto focal de todos los espacios.

más info

publicado el 03/02/2016

Comentarios (0)

Proyecto promovido por:
CTAA . Colegio Territorial de Arquitectos de Alicante

 

Colegios asociados a Plazatio

Colegio Territorial de Arquitectos de Alicante Colegio Territorial de Arquitectos de Castellón Colegio Territorial de Arquitectos de Valencia Colegio Oficial de Arquitectos de la Comunidad Valenciana

Empresas colaboradoras de Plazatio

Dile Finstral Fiorentina Stone Gibeller Mapei Newker Niessen Porcelanosa Rainbird Sido Tecnolift Valero Xal IberoStone Hf Diseños ABC PCA SIMON PALPLASTIC LAESCANDELLA COSENTINO COVERTTO FreeDom ZAR

Ver vídeo de Youtube
add
Top