Plazatio

Casa RL

San Vicente del Raspeig . Alacant . España

Detalles del proyecto

Tipo: reforma
Colegio: CTAA

Info

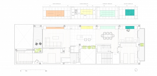
El encargo de una vivienda de piso inacabada y paralizada durante 34 años se aborda como si de un solar en altura se tratara, enfocando el proyecto en explotar al máximo sus especiales condiciones de partida. Un gran espacio principal conforma una de las dos mitades longitudinales de la vivienda, abarcando el mayor volumen continuo posible y conectando la fachada delantera con el patio intermedio y con el patio interior de parcela. De esta forma, se genera una luminosa zona de día que relaciona estas tres fuentes de luz natural, articulada por un gran mueble de 19 metros de longitud que comprende todo el muro medianero y que modula todos los espacios comunes que lo recorren. Así, las áreas de estudio (6 módulos), comedor (7), cocina (8) y salón (9), se van acomodando a lo largo de este mueble modular hasta llegar a conectar ambas fachadas, encontrando su proporción correspondiente en función de su importancia dentro de la vivienda. De forma complementaria, el resto de espacios privados se colocan en la mitad opuesta. Se sitúan las zonas húmedas en torno al patio intermedio y los dos dormitorios recayendo a cada una de las fachadas, dotando así a todas las estancias de ventilación e iluminación natural. Finalmente, un separador traslúcido integrado en el gran mueble principal permite independizar el área de estudio, convirtiéndolo en una improvisado dormitorio adicional.

más info

publicado el 11/12/2018

Proyecto básico

Comentarios (0)

Proyecto promovido por:
CTAA . Colegio Territorial de Arquitectos de Alicante

 

Colegios asociados a Plazatio

Colegio Territorial de Arquitectos de Alicante Colegio Territorial de Arquitectos de Castellón Colegio Territorial de Arquitectos de Valencia Colegio Oficial de Arquitectos de la Comunidad Valenciana

Empresas colaboradoras de Plazatio

Dile Finstral Fiorentina Stone Gibeller Mapei Newker Niessen Porcelanosa Rainbird Sido Tecnolift Valero Xal IberoStone Hf Diseños ABC PCA SIMON PALPLASTIC LAESCANDELLA COSENTINO COVERTTO FreeDom ZAR

Ver vídeo de Youtube
add
Top