Plazatio

Casa en Rio de Janeiro

Rio de Janeiro . Rio de Janeiro . Brasil

Detalles del proyecto

Tipo: Edificación, obra nueva

Info

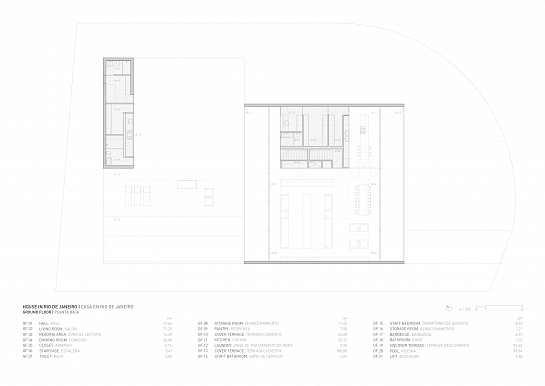
Ubicada en una ladera cerca del campo de golf de Itanhangá, en Rio de Janeiro, la vivienda se compone de dos volúmenes que de forma conjunta se depositan sobre el terreno. Cada uno de los elementos apoya en una banda que le sirve de soporte, apoyadas una sobre la otra liberan la esquina lo cual facilita la construcción haciendo el mínimo movimiento de tierras posible y caracterizando el conjunto. El punto de contacto entre ambas piezas incorpora el núcleo de comunicación. La planta baja con la zona de día se eleva sobre las viviendas colindantes. Al ser un espacio pasante, abre el ámbito de la piscina que se encuentra situado en una suerte de patio interior y el vuelo de este elemento genera una especie de jardín cubierto. En la planta superior los estudios y las habitaciones disfrutan del paisaje de Rio, mientras que el corredor de acceso se abre al patio posterior, facilitando las ventilaciones cruzadas. La relación entre este volumen y el inferior configura una zona cubierta en sombra, deseable en la cota de la piscina que a su vez permite definir el acceso a la vivienda. Dos espacios pasantes dispuestos de forma distinta, aprovechan las mejores cualidades de su privilegiado entorno.

más info

publicado el 13/01/2020

Comentarios (0)

Proyecto promovido por:
CTAA . Colegio Territorial de Arquitectos de Alicante

 

Colegios asociados a Plazatio

Colegio Territorial de Arquitectos de Alicante Colegio Territorial de Arquitectos de Castellón Colegio Territorial de Arquitectos de Valencia Colegio Oficial de Arquitectos de la Comunidad Valenciana

Ver vídeo de Youtube
add
Top