Plazatio

Casa BF

Castellón de la Plana . Castellón . España . 2016

Detalles del proyecto

Año: 2016
Tipo: Edificación, obra nueva

Info

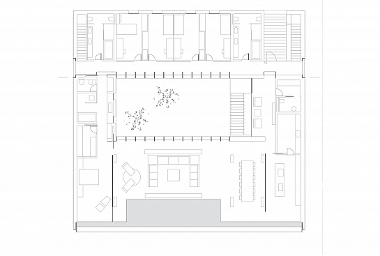
Una parcela de 3.000m2 con un desnivel de 25m. en una urbanización de Castellón construida al 50%. Observando la parcela, comprobamos que en realidad reflejaba un momento de la historia de estas tierras correspondiente al siglo XVII donde un exceso de población obligó al cultivo de todo tipo de terrenos, incluidos casos como este de gran pendiente, mediante el sistema de abancalamientos con muros de piedra del terreno. El abandono posterior permitió el crecimiento de arbolado, principalmente algarrobos y pinos. Nuestra postura fue de respeto absoluto. La construcción debía respetar el terreno y se opto por un sistema constructivo prefabricado al máximo, que se depositara sobre el terreno prácticamente sin tocarlo, sin talar árboles y aprovechando los bancales existentes, que se reconstruyeron en las zonas dañadas, con la misma piedra y la misma técnica. Parte de la casa –garaje y zonas auxiliares- se encuentra enterrada, reconstruyendo encima el terreno natural con la vegetación autóctona. Así, des­de el nivel superior, se accede mediante una rampa a un montacargas para vehículos que los introduce en el garaje situado a 13ml bajo el nivel de acceso, que comunica con la vivienda en sus dos niveles. Todo esto queda oculto a la vista. En la construcción, intentando disminuir el impacto sobre el terreno, se optó por una estructura metálica fabricada en taller y transportada a obra en grandes piezas que se ensamblaban sobre 3 pilares metálicos dobles en forma de V. La parte trasera se apoya sobre un bancal de piedra existente. Toda la construcción de este elemento en vuelo se realizó con elementos ligeros en seco. La fachada, resuelta en varias capas, se remata en el exterior con una chapa metálica grecada, especialmente diseñada para evitar los reflejos y el calentamiento, gracias a las sombras provocadas por los pliegues. La gran boca frontal, orientada hacia unas magnificas vistas, dispone de las propor­ciones adecuadas para permitir el sol del invierno y proteger del sol en verano. Las placas solares de tubos al vacio sobre la cubierta permiten garantizar casi en todo momento el agua caliente tanto para uso sanitario como para la calefacción por suelo radiante, colocada bajo una tarima de madera. Las corrientes de aire a través del patio, aprovechando las distintas orientaciones, permitirán reducir igualmente el consumo de aire acondicionado, que no obstante se ha instalado. El patio intermedio permite realizar el acceso por debajo de la casa y al mismo tiempo orientar todas las estancias hacia el sol y las vistas. Toda la casa gira alrededor de este patio, permitiendo el recorrido completo. Es una casa con patio, pero con otras connotaciones. Es el centro, permite todo tipo de vistas a su través, relaciona todos los espacios, haciendo cercana una casa con bastante superficie, pero no es accesible ni está situado en el plano de la casa; no encierra la vivienda ya que se escapa por debajo de ella. En el gran espacio frontal, que alberga la cocina, salón comedor y dormitorio principal, queda evidente el sistema constructivo, estando vistos tanto los pilares como la estructura de cubierta, formada por cartelas metálicas que soportan una chapa grecada sobre la que se construye la cubierta. Todo pintado de blanco e iluminado por leds.

más info

1 arquitectos seguidores

publicado el 25/04/2014

Proyecto promovido por:
CTAA . Colegio Territorial de Arquitectos de Alicante

 

Colegios asociados a Plazatio

Colegio Territorial de Arquitectos de Alicante Colegio Territorial de Arquitectos de Castellón Colegio Territorial de Arquitectos de Valencia Colegio Oficial de Arquitectos de la Comunidad Valenciana

Empresas colaboradoras de Plazatio

Dile Finstral Fiorentina Stone Gibeller Mapei Newker Niessen Porcelanosa Rainbird Sido Tecnolift Valero Xal IberoStone Hf Diseños ABC PCA SIMON PALPLASTIC LAESCANDELLA COSENTINO COVERTTO FreeDom ZAR

Ver vídeo de Youtube
add
Top