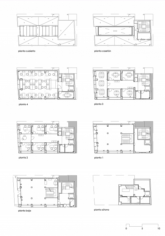
Casa Asociaciones
San Vicente del Raspeig . Alacant . España . 2017
- Autor
-
Asunción Díaz García
Detalles del proyecto
Año: 2017
Tipo: rehabilitación
Superficie construida (m2): 700
Altura maxima: 5
B, C
Info
El proyecto consiste en una rehabilitación integral con cambio de uso de un edificio situado en la Plaza de la Constitución de la ciudad de San Vicente del Raspeig.
publicado el 12/04/2019