Plazatio

Beates

Barcelona . Barcelona . España

Detalles del proyecto

Tipo: Edificación, reforma

Info

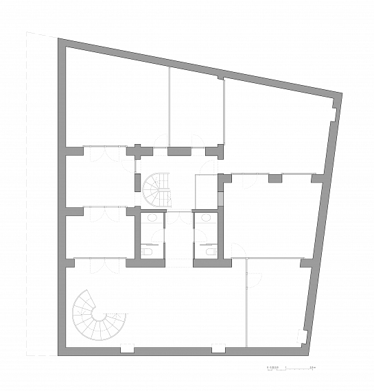
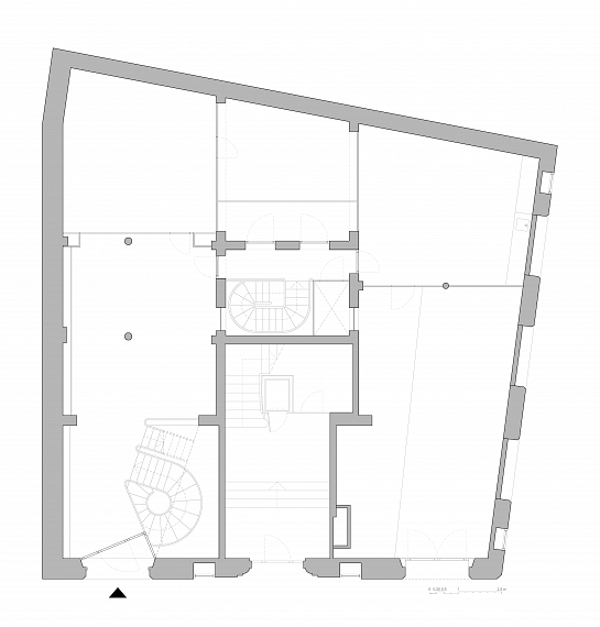
Oficina de diseño y concept store. La reforma arquitectónica de este local de planta baja y sótano vino condicionada por las necesidades del nuevo uso, oficina de diseño y concept store, en el mismo espacio que desde hacía un par de décadas se utilizaba como archivo documental y aulario. El local se sitúa en los bajos de un edificio de viviendas construido en el año 1900 en el barrio de Ciutat Vella de Barcelona. Desde la plaza se accede a la escalera de vecinos ubicada en una posición central del edificio y ésta ventila a un patio adyacente. El local resultante rodea el núcleo compuesto por la escalera y el patio generando un espacio en planta baja en forma de U. La estructura de todo el edificio es heterogénea; en las plantas piso los forjados son de viguetas de madera y bovedilla cerámica sustentados sobre muros de carga, en la planta baja son viguetas metálicas sobre pilares de fundición de sección circular y en planta sótano se trata de muros de piedra y obra de fábrica que sostienen bóvedas de arco rebajado. Cuando visitamos por primera vez el local nos sorprendió que tres de sus cinco grandes oberturas al exterior se encontraban tapiadas por muros ciegos, de modo que entraba muy poca luz natural. Tanto en la planta baja como en el sótano, el espacio se encontraba muy compartimentado, principalmente por mamparas de madera con vidrios translúcidos y algún tabique de obra. El resultado era una secuencia de estancias pequeñas y oscuras que se habían ido generando según las necesidades funcionales. La escalera principal que comunicaba con el sótano se encontraba junto al acceso en un extremo de la planta en U. Se había instalado una segunda escalera como salida de incendios en el patio central. Las dos aberturas de la plaza se convertían así en acceso principal y salida de evacuación de incendios. Con el objetivo de convertir la planta baja en concept store y showroom y la planta inferior en oficina de diseño, la intervención espacial consiste principalmente en recuperar el máximo de captación de luz solar mediante la recuperación de los huecos originales en fachada y la supresión todas las particiones interiores. Se facilita así la lectura de la tipología estructural exteriormente reflejada en la fachada y se enriquece la relación entre exterior e interior, mejorando sustancialmente la calle lateral: donde antes la calle estaba flanqueada por un largo muro ciego ahora encontramos tres vidrieras que dejan adivinar el interior al paseante. Estos nuevos cerramientos de fachada abren el local a la calle mediante grandes marcos de madera y vidrios de seguridad totalmente transparentes. El nuevo esquema de funcionamiento modifica la posición de las escaleras existentes proponiendo un nuevo núcleo de comunicaciones verticales centrado en la parte posterior del patio. Se ha simplificado la conexión entre plantas con la construcción de una única escalera de hormigón en un hueco obtenido mediante el corte de un cuadrante de bóveda. El hueco de la antigua escalera principal se ha cubierto con vidrio transitable convirtiéndolo en un lucernario que facilita la entrada de luz al sótano. Liberando al patio de la escalera de incendios existente, la zona central de la planta se convierte en un espacio a doble altura que actúa como pulmón del proyecto. Descentralizamos los antiguos accesos manteniendo el acceso principal desde la plaza, ubicando el concept store en la parte más pública del local. El acceso secundario se desplaza a la calle lateral, en el extremo opuesto de la planta, vinculándolo a la oficina de diseño y al showroom. El proyecto también contempla el recorte de los altillos existentes en planta baja, los cuales fragmentaban mucho el espacio. Se mantiene una superficie de menor dimensión en la zona del showroom, con acceso desde una nueva escalera de hormigón armado con el mismo lenguaje constructivo que la escalera principal. La intervención en Beates recupera la conexión del local con la calle, estirando al máximo la luz natural incluso hasta el sótano, buscando la fluidez del espacio en un ambiente que conjuga materiales nobles y confortables con la tradición constructiva de principios de siglo, en línea con la filosofía de la marca que ocupará la oficina.

más info

publicado el 19/04/2017

Comentarios (0)

Proyecto promovido por:
CTAA . Colegio Territorial de Arquitectos de Alicante

 

Colegios asociados a Plazatio

Colegio Territorial de Arquitectos de Alicante Colegio Territorial de Arquitectos de Castellón Colegio Territorial de Arquitectos de Valencia Colegio Oficial de Arquitectos de la Comunidad Valenciana

Ver vídeo de Youtube
add
Top