Plazatio

Ampliación Centro Cívico Joan Oliver

Barcelona . Barcelona . España

Detalles del proyecto

Tipo: Edificación, reforma, ampliación
Superficie construida (m2): 2.040

Info

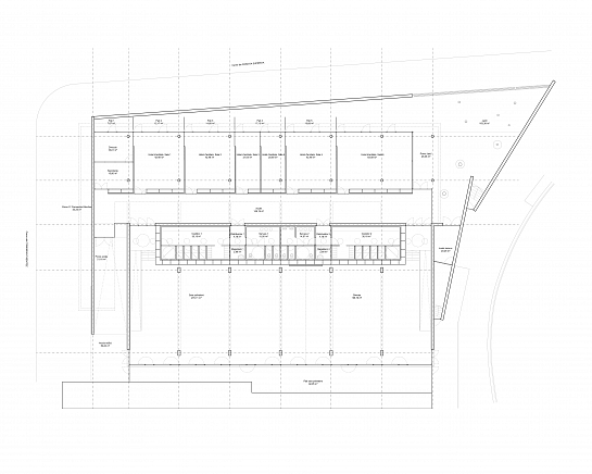
El edificio, que acoge el Centro Cívico Joan Oliver, fue construido hacia finales de los años 90. Sus servicios se desarrollan en planta baja y sus diferentes espacios se articulan en ambos lados de un pasillo longitudinal, donde se ubican, en uno de los lados, las aulas y despachos, y en el lado opuesto, el gimnasio y los vestidores. El Distrito de Les Corts promovió la ampliación del edificio construyendo una planta más que abrazase la totalidad de la planta baja para poder dar cabida a nuevos espacios y actividades. Para llevar a cabo el proyecto se exigieron dos condicionantes de partida. Por un lado, la mínima afectación, en tiempo y molestias, a la actividad y, por otro, la posibilidad de hacer del equipamiento un edificio que plantease y visualizase la sensibilidad medioambiental. No se trataba de desarrollar solamente un proyecto de arquitectura, sino también de dar una propuesta funcional con soluciones industriales existentes que aportasen garantía de rapidez, calidad y sostenibilidad. El edificio se plantea con una construcción ligera industrializada en sus elementos estructurales y de envolvente. Tenían que ser sistemas que pudiesen ser conformados en taller y ensamblados en obra. La decisión tenía que suponer ventajas de efectividad, de disminución de residuos y de control en la calidad y los recursos, tanto en el proceso de fabricación como en la colocación en obra. El proyecto propone una estructura metálica que cubre grandes luces y una cubierta de chapa grecada curva autoportante y multicapa, que arquitectónicamente quiere recordar a la bóveda catalana. Las fachadas son de paneles de madera contralaminada de gran formato con aislamiento y acabados integrados. En el este y oeste la presencia la tiene la vegetación.

más info

publicado el 23/05/2017

Comentarios (0)

Proyecto promovido por:
CTAA . Colegio Territorial de Arquitectos de Alicante

 

Colegios asociados a Plazatio

Colegio Territorial de Arquitectos de Alicante Colegio Territorial de Arquitectos de Castellón Colegio Territorial de Arquitectos de Valencia Colegio Oficial de Arquitectos de la Comunidad Valenciana

Ver vídeo de Youtube
add
Top