Plazatio

AGRUPACIÓN DEPORTIVO CULTURAL Racing San Gabriel

2015

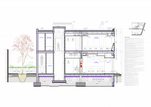
Detalles del proyecto

Año: 2015
Tipo: Edificación, obra nueva
Superficie de parcela (m2): 360
Superficie construida (m2): 604
Altura maxima: 6,73
Colegio: CTAA
B

Info

más info

1 arquitectos participan

publicado el 18/07/2018

Comentarios (0)

Aporta vida al lugar

Proyectos similares

Proyecto promovido por:
CTAA . Colegio Territorial de Arquitectos de Alicante

 

Colegios asociados a Plazatio

Colegio Territorial de Arquitectos de Alicante Colegio Territorial de Arquitectos de Castellón Colegio Territorial de Arquitectos de Valencia Colegio Oficial de Arquitectos de la Comunidad Valenciana

Empresas colaboradoras de Plazatio

Dile Finstral Fiorentina Stone Gibeller Mapei Newker Niessen Porcelanosa Rainbird Sido Tecnolift Valero Xal IberoStone Hf Diseños ABC PCA SIMON PALPLASTIC LAESCANDELLA COSENTINO COVERTTO FreeDom ZAR

Ver vídeo de Youtube
add
Top